1613
W
PIONEER
Parkway
Peoria,
IL
61615
CLS #PA1265152
$1,699,000
6800 Total Sq. Ft.
6800 Available Sq. Ft.
Available for Purchase.
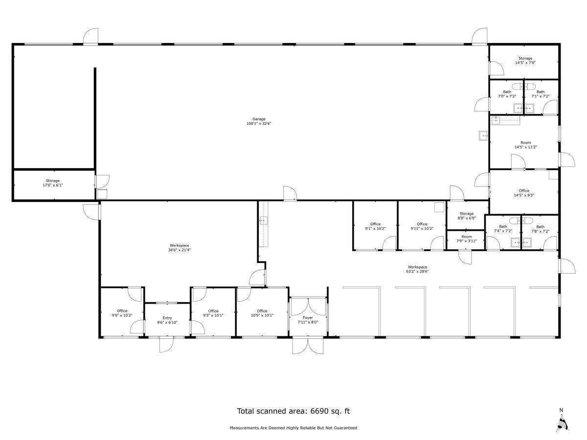
This car dealership, sales and service center is available for sale and lease. It provides high visibility and traffic counts on Pioneer Parkway with easy access to North Peoria, Dunlap, Route 6, I-74 and several other Peoria car dealerships and auto related businesses. The sales center side includes 5 private offices, 5 semi-private offices, foyer, lobby with coffee bar, open work area (suitable for 4 cubicles), 2 ADA compliant restrooms, and storage. The service center side includes 7 bays, each with 10'x10' overhead doors and floor drains, as well as a shop restroom, electric room and utility room. The service center also has a separate entrance, lobby with ADA compliant restroom, and service office. There are well lit parking lots around the building with 85+ spaces. This property is located in the Peoria Urban Enterprise Zone Amendment #8.
Listing Features
Type:
Land, Building
Zoning:
C-2
County:
Peoria
Water/Sewer:
Public Sewer
Total Sq. Ft.:
6800
Approximate Lot Size:
300' x 325'
Available Office Sq. Ft.:
2800
Directions:
Pioneer Parkway
The accuracy of all information, regardless of source, including but not limited to square footages and lot sizes, is deemed reliable but is not guaranteed and should be independently verified through personal inspection and/or with the appropriate professionals.
This listing compliments of
RE/MAX Traders Unlimited
RE/MAX Traders Unlimited
© Copyright 2004, 2005 Commercial Listing Service., All Rights Reserved
Last Updated on 5/26/2026 12:17:51 PM