122
N
MAIN
Street
Washington,
IL
61571
CLS #PA1261944
4080 Total Sq. Ft.
1870 Available Sq. Ft.
Available for Lease.
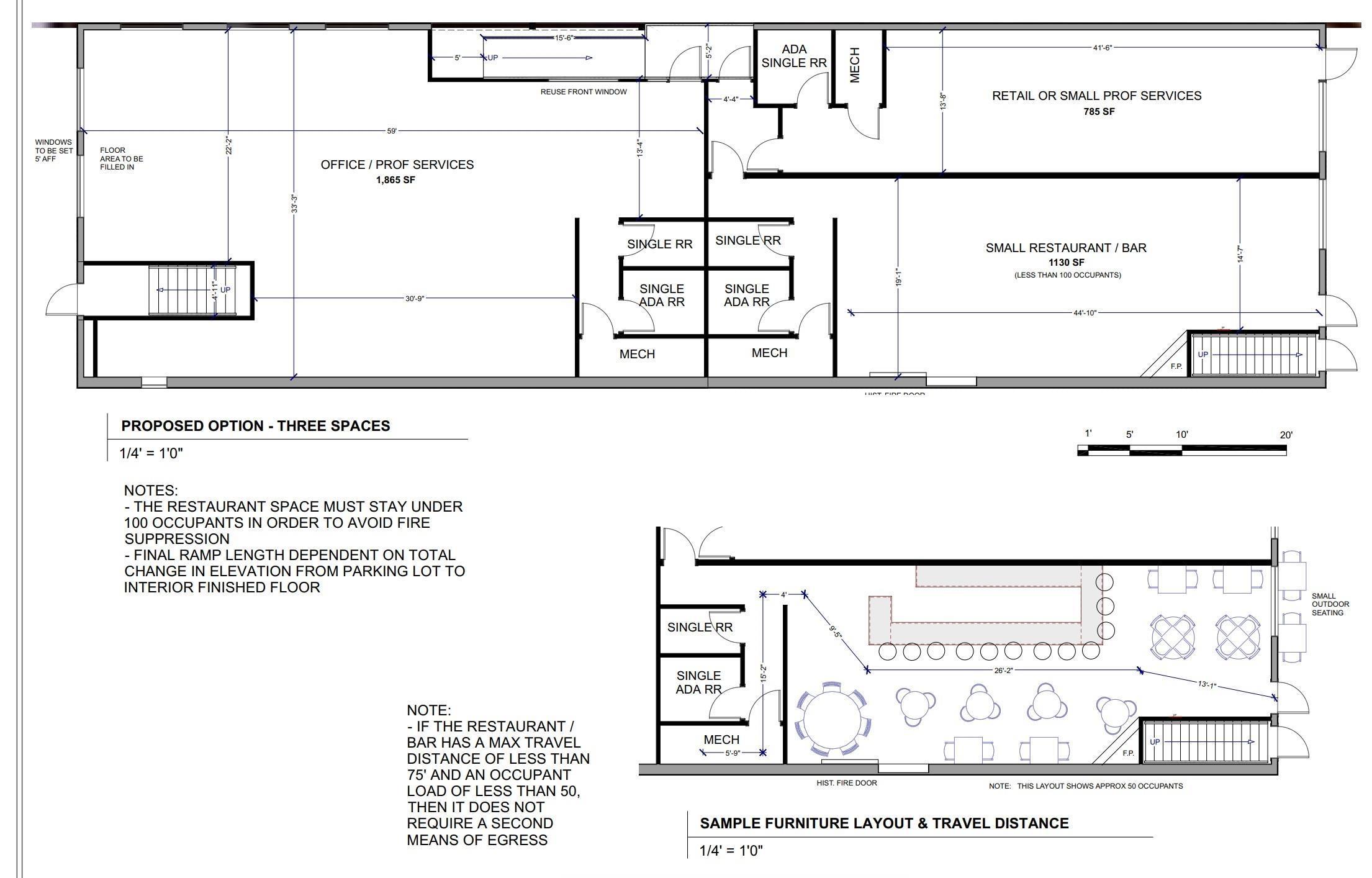
1130-1870 SF available for the development of a bar/restaurant (see images of potential floorplans). Prime retail/office space just one block north of the Washington Downtown Square. This property is ready to be leased and built out for your business to join the busy Downtown Square community. The facade was recently updated with beautiful brick, new awnings, doors and windows. This building was formerly a Bowling Alley and still has the vintage floor. It was most recently a spirit wear store. The building also has a full basement and 200 amp electrical services. The 4080 SF space can be subdivided in half, or as approximately 1800-2040 SF office (rear), 785-890 SF retail (front), and 1130-1870SF bar/restaurant (see images of potential floorplans in photos).
Listing Features
Type:
Building
Zoning:
C2
County:
Tazewell
Water/Sewer:
Public Sewer
Total Sq. Ft.:
4080
Directions:
Main Street, 1 block N of Square
The accuracy of all information, regardless of source, including but not limited to square footages and lot sizes, is deemed reliable but is not guaranteed and should be independently verified through personal inspection and/or with the appropriate professionals.
This listing compliments of
RE/MAX Traders Unlimited
RE/MAX Traders Unlimited
© Copyright 2004, 2005 Commercial Listing Service., All Rights Reserved
Last Updated on 1/19/2026 11:17:12 PM