701
E
PEORIA
Street
Goodfield,
IL
61742
CLS #PA1261042
$3,000.00/sq.ft.
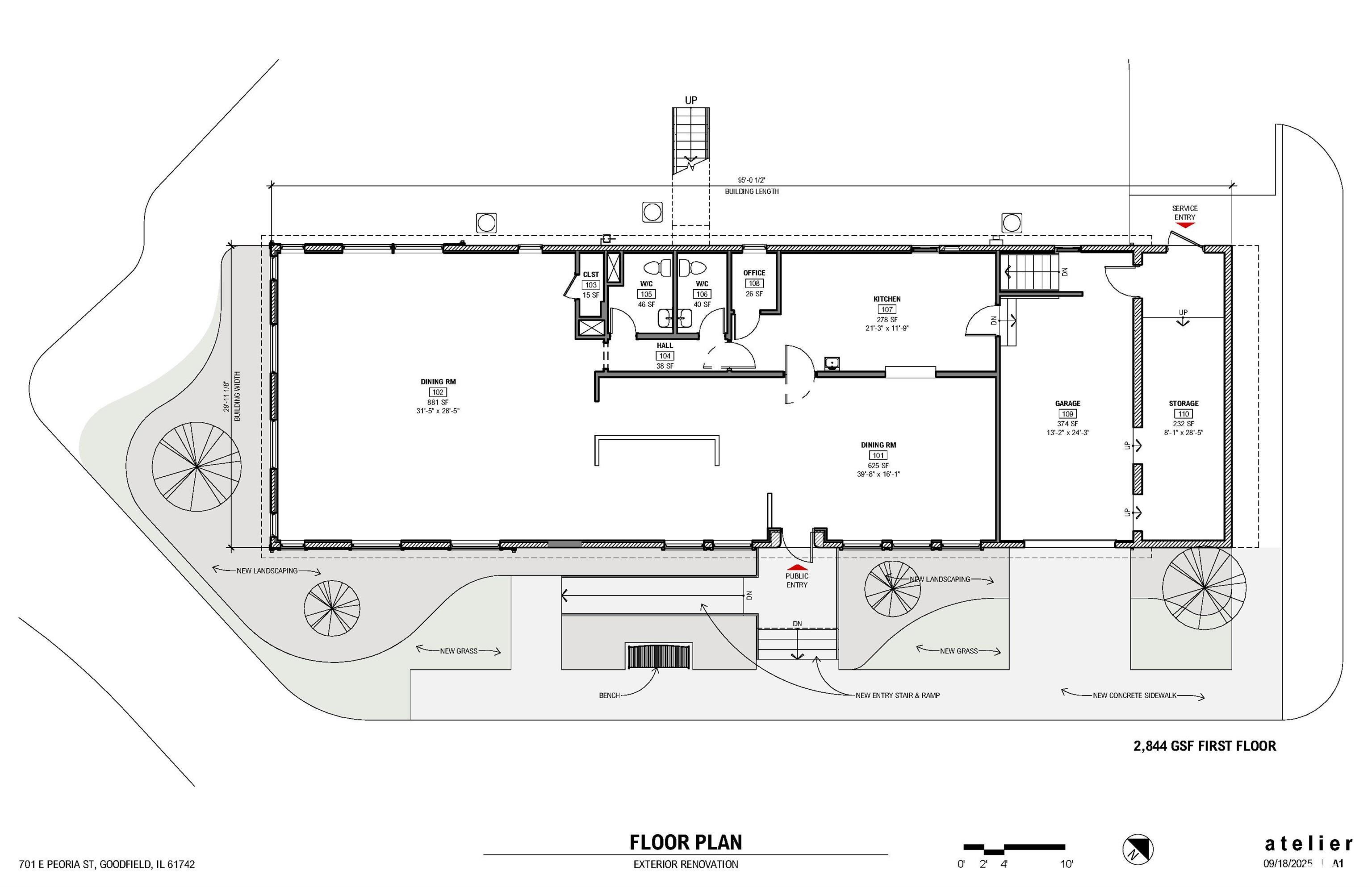
7259 Total Sq. Ft.
3090 Available Sq. Ft.
Available for Lease.
This versatile commercial building offers multiple potential uses in an excellent high-visibility location at the corner of Highway 117 and Highway 150. Less than a half mile from I74. The property features ample parking, easy access, and strong daily traffic counts, making it ideal for retail, office, service-based, or professional use. W Exterior renderings are included to showcase the exciting updates currently being completed by the sellers, giving the property a fresh new look and added curb appeal. Whether you're looking to expand your business or launch a new one, this property delivers the visibility, convenience and modern presence you need to succeed.
Listing Features
Type:
Building, Sale/Lease Other
Zoning:
Commercial
County:
Woodford
Water/Sewer:
Public Sewer
Total Sq. Ft.:
7259
Approximate Lot Size:
.77 acres
Directions:
I 74 to the corner of Hwy 117 and Hwy 150.
The accuracy of all information, regardless of source, including but not limited to square footages and lot sizes, is deemed reliable but is not guaranteed and should be independently verified through personal inspection and/or with the appropriate professionals.
This listing compliments of
RE/MAX Traders Unlimited
RE/MAX Traders Unlimited
© Copyright 2004, 2005 Commercial Listing Service., All Rights Reserved
Last Updated on 10/18/2025 3:17:17 PM